Théatre de l'Oriental, Vevey

Concours, 2010

 

L’intervention proposée pour le théâtre de l’Oriental s’inscrit dans le respect des lieux, tout en proposant des améliorations fonctionnelles, techniques et constructives importantes.
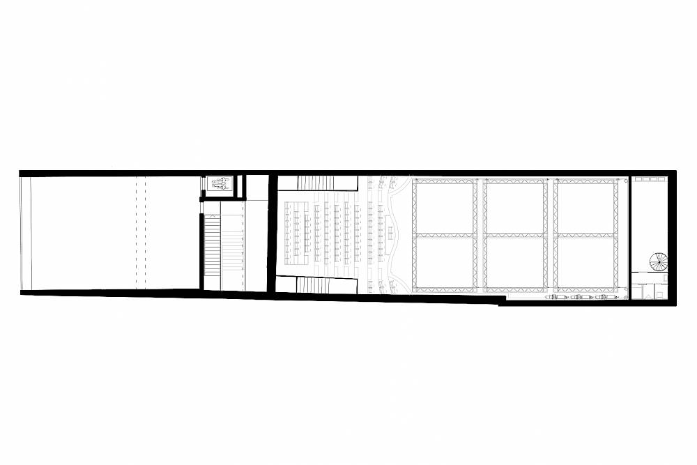
Les trois parties qui composent l’ensemble restent bien discernables. Le bâtiment sur rue abrite le foyer au rez-de-chaussée, la salle de lecture, les bureaux et un espace technique aux étages, ainsi que la nouvelle salle de répétition en toiture. L‘arrière-bâtiment reste réservé à la salle de spectacle, rendue modulable, et aux locaux attenants. La cour est transformée en hall central, espace de circulation et de rencontre qui abrite un nouvel escalier desservant les différentes parties du théâtre.

Concours:
2010, 2ème prix

Maître de l'ouvrage:
Ville de Vevey

Spécialiste:
Hans-Jörg Huber

Théatre de l'Oriental, Veveycoupe longitudinale

coupe longitudinale

Théatre de l'Oriental, Veveyfaçade sud

façade sud

Théatre de l'Oriental, Veveyrez de chaussée

rez de chaussée

Théatre de l'Oriental, Veveyrez de chaussée

rez de chaussée

Théatre de l'Oriental, Vevey2ême étage

2ême étage

Théatre de l'Oriental, Vevey3ême étage

3ême étage

Théatre de l'Oriental, Veveysalle de répétitions

salle de répétitions

Théatre de l'Oriental, Veveyvue extérieure

vue extérieure

Indem Sie diesen Hinweis schliessen oder mit dem Besuch der Seite fortfahren, akzeptieren Sie die Verwendung von CookiesDatenschutz